2021顶峰设计奖 | 文体医养空间实景类金奖-文字市井·墨色芳华
*获奖者专辑将按奖项单元顺序发布
文体医养空间实景类
GOLD AWARD
参赛类别 / Category
文体医养空间-实景类
作品名称 / Work
文字市井·墨色芳华-书店文创
获奖者 / Winner
水木言设计机构
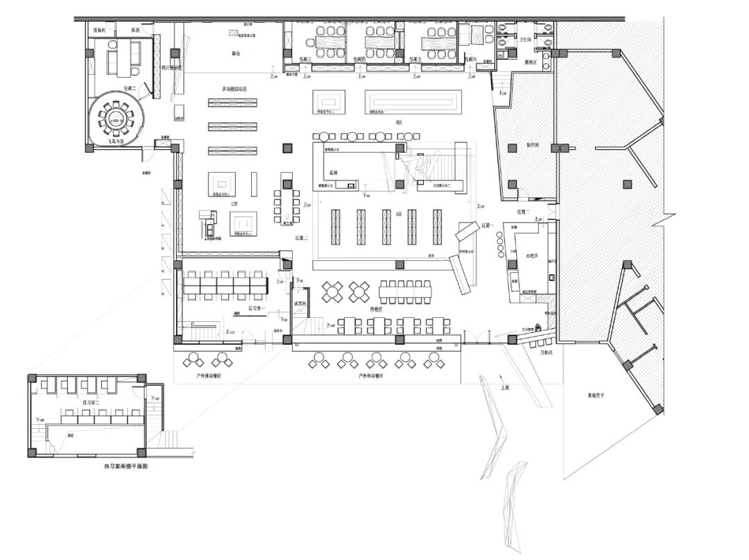
平面布置图
白色纸张是无限潜能的空;黑色文字是无限可能的实。书店落位在一个带院子的建筑里,前街的喧嚣熙攘,后院拥揽社区宁静;室内有着建筑窗洞可诉求攀登,建筑侧面则有着护坡的粗犷与隐退。看似矛盾的场景元素,却给予空间各种对话的可能。
我们下沉了建筑屋檐的高度设定,这样人们在进入书店前,会因灰黑屋檐的贴近感而形成室内外转场的心理暗示——进入阅读世界与自我探索前的某种仪式感。
开放区的天窗区域,纯白的天光耀目充满希望的光华,墨色汉字比划结构的装置沉重而凝练,这些彼此依托的字符形体,搭建出书山有路勤为径的意向表达。
设计之初,我们曾在建筑入口设定了一片稻田,希望人们穿过这城市稀缺的公共景观,能触发对自然与自我的思考探索,然而遗憾的是之后因为种种原因被取消了。之后我们将岳麓山脊的符号抽象化后形成书店前坪外延,建立建筑与场景的对话关系。然而在实施过程中,因当地居民的反对最终未能落地。无论结果如何,作为一个独立书店,在坚守信仰的路上,每一次尝试与努力都是一次闪光。
关于顶峰设计奖
顶峰设计奖为旨在促进湖南设计⾏业领域的国际化发展,提⾼⾏业空间设计⽔准。中⼩型建筑室内⼀体化空间设计是能够体现设计经济价值、⽣态价值、艺术价值,从室外到室内、从环境到艺术完整的设计理念,更是未来建筑装饰⾏来发展的必然趋势。
⼤赛以湖南省建筑室内设计学会为平台,秉承“设计·驱动·湖南”为理念,恪守专业、严谨、公平、公正的原则,倡导本⼟原创设计,发掘并表彰优秀设计师及团体。⼒求将“顶峰设计奖”打造成湖南本⼟甚⾄全国的品牌赛事,进⼀步推动湖南设计的创造⼒、设计推动湖南影响⼒的价值转化。
顶峰设计奖组委会
湖南省建筑室内设计学会官网www.hiid.top
https://mp.weixin.qq.com/s/PzE8MGH6qmjggRW-Lhbeiw
苏公网安备32021402002828