2021顶峰设计奖 | 住宅空间实景类获奖作品
*获奖者专辑将按奖项单元顺序发布
住宅空间实景类
GOLD AWARD
参赛类别 / Category
住宅空间-实景类
作品名称 / Work
無印
设计机构 / Organization
方平米设计事务所
获奖者 / Winner
王谦
▼
本案以质朴的侘寂风打造,简洁干净的空间里搭配温暖清新的色调,全方位地表达生活纯粹的本貌,营造出富有自然气息的室内家居环境。
平面布置图
低饱和度的色彩为空间基调,自带高级感,柔美的曲线给空间倾注饱满而温柔的气质,在暗藏式光源下拉长了空间的纵深感,同时温暖而充满感染力。 通过拱门,便进入客餐厅空间,客厅电视墙弧面的设计将细腻的白色肌理带入餐厅,波纹板与黑色层板穿插增添了一些起伏感,温情而优雅。手作感艺术墙面搭配柔软的面包沙发,波片形吊灯,顶面曲线蔓延,柔和了整个空间。
住宅空间实景类
GOLD AWARD
参赛类别 / Category
住宅空间-实景类
作品名称 / Work
泊
设计机构 / Organization湖南内外设计
获奖者 / Winner
付琦
▼
我们让室内空间尽量的干净、舒适,迎合室外的诗意,
让居者有一种从内而外回归自然、轻松自在的居住感受。
平面布置图
解放电视背景墙,提高空间的功能性,增加家人的情感互动,从而赋予空间更多的温度。
厨房中岛台,环岛客厅,过道的中岛柜
形成3组洄游动线,提升了空间的灵动性与功能性。
过道的中岛柜,像一个体块置入空间之中。
提升家居收纳的同时,增添了空间的趣味性和层次感。
室内的氛围与室外的景色,共生共融,
干净的氛围、配上柔和的灯光。让居者可以在每一天工作后卸下紧绷的神经,让身心得到归位和休整,感受家的惬意。
住宅空间实景类
GOLD AWARD
参赛类别 / Category
住宅空间-实景类
作品名称 / Work
十二时辰
设计机构 / Organization
湘西李勇室内设计事务所
获奖者 / Winner
杨倩
《设计说明》
每个人都向往有一个安静的角落,可以静下心用自己的节奏感受生活的美好,即使在纷扰忙碌的都市,也能回归初心。
本案以黑色与白色作为主色调,摒弃花俏的造型,避开浓重的色彩,以简单而不失质感的空间设计,寻得适宜生活的温度平衡。
黑是宇宙的底色,代表安宁,也是一切的归宿
白色星点在宇宙的底色中显得格外酷炫与耀眼
平面布置图
餐厅区域墙面及顶都都用了黑色做为底色,白色的装饰灯及白色餐桌做为功能同时也化身艺术装置承载更多可能性。
客厅区域餐厅区域墙面跟电视背景墙一体延伸、卷角处像翻开的书页让空间更有灵动性。
客厅落地窗摒弃传统厚重的布艺窗帘,采用可调节角度的百叶帘,当阳光掀开帘子翻进室内,用不同角度的pose提醒你,十二时辰里申时最为珍贵。
冥想区作为治愈心灵的宝地,整体色调以自然气息为主,干净舒适;远离喧嚣,回归本真,在冥想的世界里疗愈自我。
没有一个风格适合所有人,没有一个设计能满足所有人的需求。作为业主,你是谁,你的生活是怎么样的?作为设计师,你想成为一个什么样的设计师?这些都是需要我们深深思考的。因为我们每一个人都独一无二。
住宅空间实景类
GOLD AWARD
参赛类别 / Category
住宅空间-实景类
作品名称 / Work
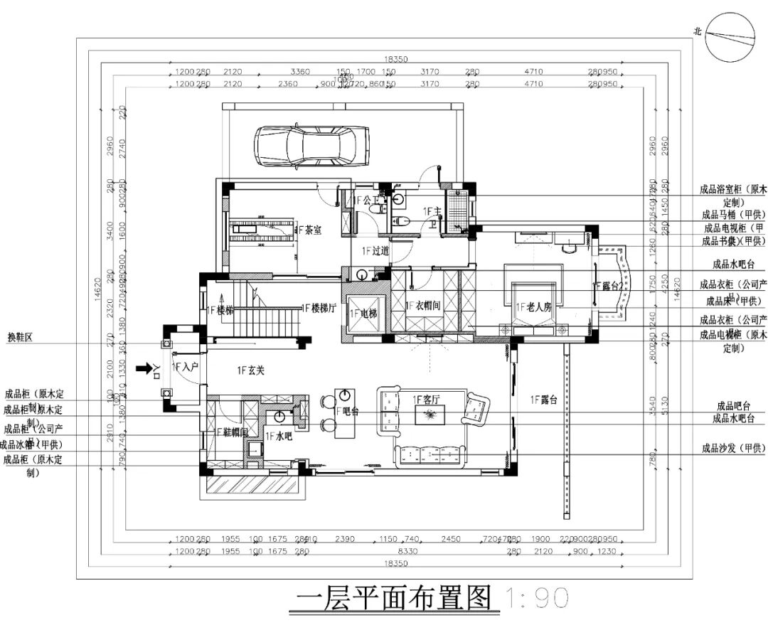
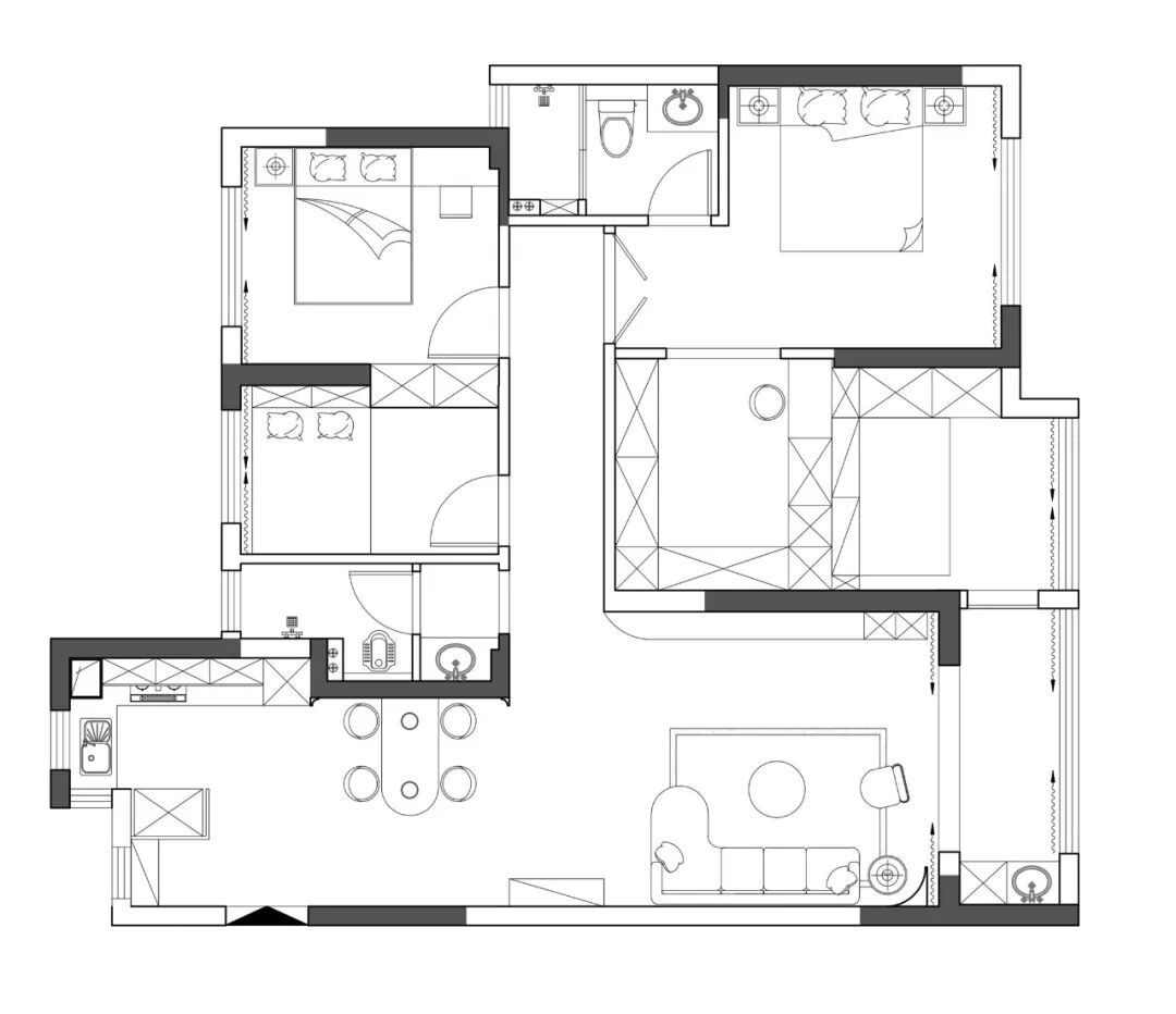
自由与边界的探索
获奖者 / Winner
湖南境屿空间设计有限公司
这套房是夫妻俩为女儿们小学教育所购置的学区房,主人不希望因为学区房的关系牺牲居住体验,也不希望生活中全都被孩子的世界填满,夫妻俩希望给自己和女儿们都能营造一个舒适自在的居所。
1F平面布置图
“我希望先成为更好的自己,然后才是孩子眼中的父母。”这个家是他们探寻亲子关系的试验场,给孩子陪伴与自由的成长空间,同时也保留自我的精神世界。
利用复式错层的空间属性,将一二层在视觉上形成完全不同的两种风格,一楼所有的布局及软装搭配都完全迎合成年人的社交属性及品味,开放式西厨、社交餐厅、深色空间等完整的营造出屋主偏爱的品质空间。
2F平面布置图
整个二层留给孩子们,由住家保姆照顾她们的起居,在二楼空间,我们不希望建筑的体块去固化思维,反而希望打破物理空间,将空间去边界化。除宝贝们的卧室,还有供小朋友手工活动、学习娱乐、亲近自然的露台区域,为其创造一个充满活力和激发灵感的成长空间。
两层空间通过楼梯的链接串联了成人与孩子各自的世界,即独立又依存,为他们各自保留的「边界」,共同成长却同时拥有自己的精神世界。
住宅空间实景类
SILVER AWARD
参赛类别 / Category
住宅空间-实景类
作品名称 / Work
白色恋人
设计机构 / Organization
湖南内外设计
获奖者 / Winner
付琦、朱穗芬
▼
巧妙的用些小弧面,弱化客厅和餐厨的阴阳角部分,让空间变得柔和一些。
家具的选择上,也尽量偏圆润。增添稍许艺术感的同时也让不大的客餐厅空间,变得更柔化。
用壁炉切分沙发背景墙,呼应风格。
平面布置图
住宅空间实景类
SILVER AWARD
参赛类别 / Category
住宅空间-实景类
作品名称 / Work
4406
设计机构 / Organization
鸿扬家装
获奖者 / Winner
朱文燕
▼
居住者是三口之家注重家庭互动亲自娱乐
大格局上先分为动区和静区
“动区”在开放性空间架构中
透过不同的抬高来划分区域
透过木质肌理连接空间
划分出客厅/开放式书房休闲区/西厨/中厨
运用‘抬高’界定空间区域的划分
让空间全部融合一体又各自独立
把房间的门都隐藏起来
把柜子的门也融入到空间划分中
使用模糊的分割手法
让空间不分割死
但其功能分区又一目了然
平面布置图
住宅空间实景类
SILVER AWARD
参赛类别 / Category
住宅空间-实景类
作品名称 / Work
轴线
设计机构 / Organization
湘西李勇室内设计事务所
获奖者 / Winner
杨倩
▼
白色作为空间视觉的主轴
既分隔又融合的方式进行三大区域的链接
这个150㎡的平层住宅住着一家四口,有两个上学的孩子,爸爸上班,妈妈主要负责小孩的生活起居,一家四口其乐融融的生活是空间想营造的主题氛围。
平面布置图
环绕式岛台、让整个空间动线更加合理、餐厅与客厅可封闭可开放,让空间有更多种可能性。
进门区域端景岛台一体化,端景可以区分入户进门见灶的尴尬。也形成一个独立的入户玄关。
客厅是完全开放的,拥有开阔的视野,大落地窗,层高的优势也拥有极好的采光。
同时这里又是层次分明,功能多元的,设计师用可以拼组的沙发,围合了一个双向的沙发区,提供了更多元的空间玩法。客厅也是一家人待的时间最长的地方,四位家庭成员可以在这里自由地聊天、阅读、看电影。围合式家具摆放也让客厅展现出热情好客的姿态。
沙发后整面墙的展示收纳书架,不仅构成了一处完整的阅读区域,也串联起了一家人的生活圈,无论是孩子们的照片,妈妈的书籍,爸爸的收藏都能找到最合适的位置摆放。
整个空间是以材质划分区域、右边是以深色墙板做为延伸,让整个轴线关系更加明朗。
品茗区天花及地面用实木材料,色彩上更能融入这里的暖色灯光,同时,品茗区与客厅不同的天花造型跟地坪分割,也营造出空间的轴线位置,区别层次与使用机能。
主卧整体风格延续公共空间的元素,同样是以色块的方式划分区域,让整个空间更加协调。
住宅空间实景类
SILVER AWARD
参赛类别 / Category
住宅空间-实景类
作品名称 / Work
湘江河
设计机构 / Organization
长沙无见设计
获奖者 / Winner
安陳
▼
空间上我们试图追寻家的温暖与治愈感,温润的原木给了我们很大的灵感,用木作给空间注入温度,一切充满生命感的元素, 感受着身处一隅带来的的安宁与舒适……将原木作为主角去诠释空间的温度,摒弃墙体冰凉的触感从而强调木质的温暖感,在空间格局上我们想产生更多空间语言的对话,所以将餐桌作为建立亲密关系的桥梁,去平衡和联合整个空间,从玄关区域延伸而来的白色体块像海浪一般涌入客厅,在顶面泛起一层涟漪,传递出的明确节奏牵引着空间的场景变化,也提高空间的灵性和趣味性;而不同空间中同种材质的延续也是为了在相互独立的层次下追寻更深层面下的融合;
平面布置图
住宅空间实景类
SILVER AWARD
参赛类别 / Category
住宅空间-实景类
作品名称 / Work
八方小区
设计机构 / Organization
德思奇家居有限公司
获奖者 / Winner
瞿铁奇
▼
1F平面布置图
2F平面布置图
住宅空间实景类
SILVER AWARD
参赛类别 / Category
住宅空间-实景类
作品名称 / Work
木成心许
获奖者 / Winner
境屿空间研究室
▼
平面布置图
住宅空间实景类
BRONZE AWARD
参赛类别 / Category
住宅空间-实景类
作品名称 / Work
纯粹Gray & Blue气度非凡的现代美学家
设计机构 / Organization
长沙亚町设计机构
获奖者 / Winner
谭贻心
▼
表达一种感觉,不用解释,也无需语言,用最单纯的色彩才能唤起最强烈的心灵感受力。”
——伊夫·克莱因(Yves Klein)
3/4Grey Box + 1/4 Blue = ?
设计师凭借本案出则繁华,入则宁静的江景居住氛围,结合主人独特的品味和心性,以纯粹简洁的语言和装饰定义一个极简空间,使得居住者享受安静平和的时光,静静品味生活。
平面布置图
住宅空间实景类
BRONZE AWARD
参赛类别 / Category
住宅空间-实景类
作品名称 / Work
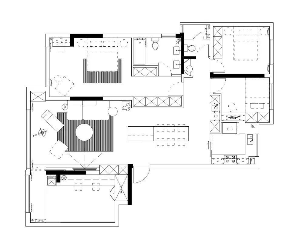
极简不冷淡主义
设计机构 / Organization
STUDIO 11
获奖者 / Winner
谢焱
▼
空间布局上我们取消了一间小卧室,使之成为了主卧室的独立衣帽间,通过调整主卧室入口,有效的利用了原本过长的过道空间,并重新设计了主卫,使洗漱、淋浴、马桶区三区完全分离独立。
书房既可以独立使用,又可以完全敞开与公共空间融为一体,两扇玻璃推门既是书房的房门,也可以使其中一扇推到一侧成为公共卫生间的门。
厨房做了隐藏式玻璃移门,同时满足中西两种生活方式。
平面布置图
立面造型简练,只用黑白两色和三种材质去做大的构成。
软装设计上希望传达的是,“极简”并非就是“距离感”、“不温馨”的代名词,通过搭配一样可以做到很温暖。
入户 隐藏式鞋柜,横向加竖向的整个柜体,足够放下一家人四季的鞋履。
过道 不管是从入口处看进来,还是从玄关处回望,都很开敞、舒适。
客厅 线条简洁,块面清晰。进口油蜡皮的沙发和经典的巴塞罗那椅足以彰显品质,铝箱带来一些硬朗而复古的气质,玄关处的两棵木柱是我们收回来的老房梁的柱头,配上墙上来自摄影师朋友在西北地区旅行时拍摄的作品,让空间有了的温度和人文气息。
餐厅 餐厅与客厅是一体的,配合隐藏式推拉门的厨房,可以满足家庭使用和呼朋唤友两种模式。并且餐桌也可以是书桌,你坐在沙发上看书听音乐的时候,我可以在餐桌上用笔记本处理下工作,未来孩子们也可以在餐桌上写写画画,厨房、餐厅、客厅的融合,给家人提供更多互相交流、陪伴的方式。
住宅空间实景类
BRONZE AWARD
参赛类别 / Category
住宅空间-实景类
作品名称 / Work
黑白之间
设计机构 / Organization
翌墅空间设计
获奖者 / Winner
毛晓翌
室内空间的围合性,自带场域的限制效果。设计希望突破定势,着力构建室内、外的彼此互动,采用“可开可合”的方式关注营造人、空间、自然间的共生关系。
1F平面布置图
基于原始建筑结构,将客厅和阳台的隔墙作了拆除,以玻璃折叠门弱化空间的封闭感创造视觉上的开敞印象。考虑业主的阅读习惯,把原始户型定义的游泳池区域做上下叠层;上层规划设置为书吧,下方空间作储物间。一楼公共区域因花园阳台和书吧的融入,隔而不断,模糊空间界限强调贯通效果。黑白灰的硬装基调,选择纯粹的界面形式呈现,摒弃令人眩目的复杂形体;不同功能空间关联、组合的形式,关注界面线、面的相互生成,契合人的使用需求。
2F平面布置图
无论是客厅折叠门,亦或是电视背墙及卧室柜门;“模块”化的组织策略,渗透于空间的各个细节,通过“可开合”设计和大量隐藏的收纳空间创造简洁、纯粹的整体风格。
“黑白”色彩,透过凝练手法构建“秩序”折射出形式对功能述求的回应。同时,“黑白”也是一种态度——纯粹的形式留有余地,以开敞的胸怀容纳生活的缤纷色彩。自然的灵动悄然渗透,界面“实体”与空间“虚体”契合共生,彰显对生活的热忱态度。
住宅空间实景类
BRONZE AWARD
参赛类别 / Category
住宅空间-实景类
作品名称 / Work
白昼
设计机构 / Organization
玖年设计
获奖者 / Winner
郑秋杰、刘芸珠、舒虹霖
《设计说明》
在设计上不仅需要注重空间的形式和功能,也更需要关注空间中的人与人,人与物和物与物之间的关系,要尝试将人对空间的行为需求和情感需求绘制成系统的蓝图,统一到空间整体功能的设计上,并去寻找一种时尚切轻度奢华的装饰形式,将居住态度与人物情绪最大化融入空间。
本案业主是一位时干练尚的精英女性,注重审美,也更注重生活品质。空间的合理性以及自由、时尚、充满仪式感的生活方式是其赋予这个居住环境最大的期望。
平面布置图
世界万物都有两面性,生活也不例外。一面静,安逸舒缓,平静如水;一面动,绚烂多彩,人生如戏。时而浮夸,时而内敛……平凡又琐碎的日子里,倚坐在吧台前,端上酒杯,举手挑眉间,都是业主不愿意将就的生活态度和格调。
生活场景不再单一,通过对自然光的控制与人造光的再设计,让空间呈现出不同的氛围。从而产生截然不同的场域情绪,来增加生活的情趣化。
黑与白的色彩搭配,石材与木制品的质感,再点缀少量的金属色,让奢华变的不在浮夸,去掉花样年华浮躁,更多的是成熟心态下,自我审示与认知的生活态度与对内心追求的一种渴望。
我们通过跟业主不断的沟通与提取,最终来帮她完成一个理想状态的家。
住宅空间实景类
BRONZE AWARD
参赛类别 / Category
住宅空间-实景类
作品名称 / Work
月壳
设计机构 / Organization
长沙无见设计
获奖者 / Winner
熊隆胜
《设计说明》
原户型中玄关空间狭小,无论是从光线还是视觉体验上都不太合理;此外客厅空间整体的光线及通风条件较好,但靠近玄关的整体空间都需要提升通透感;原始餐厨空间较为紧凑,如何解决是后续设计一大重点;
平面布置图
从入户玄关我们便有意识地运用连续排列的格栅板表达空间的秩序感,而同材质按照不同比例穿插融合让空间的秩序感得以流畅律动。我们用同一色块表达空间的情感诉求,用不同的材质肌理传达出更深层次下的设计理念;此外相邻空间的交互性设计,是希望让空间的功能产生联系从而完成对无界、无限、无我的深度沉浸与沉思;在强调整体性的同时我们花了更多心思去丰富空间层次感,连续排列的格栅板,收口细节的凹凸差,纸片化的顶面与大面积色块的对比.......从心理层面打破空间的固有边界、视觉边界或功能边界,保证其连续性、延展性与自由性,而从顶到墙再到地面三者之间材质的层次转变与融合是我们所追求的空间艺术化与满足感。
住宅空间实景类
BRONZE AWARD
参赛类别 / Category
住宅空间-实景类
作品名称 / Work
安放
获奖者 / Winner
美颂上镜室内建筑设计
住宅空间实景类
BRONZE AWARD
参赛类别 / Category
住宅空间-实景类
作品名称 / Work
跨·界
设计机构 / Organization
美迪装饰
获奖者 / Winner
文敏
《设计说明》
生活品质的提升,促使我们去追寻更深层次的享受,而舒适、优雅的生活态度和不失品味的高贵的优质生活,这就是现代极简风格的设计理念。它代表了一种精致的生活方式,为使用者寻求更大的价值体验。本案家具线条流畅,组合搭配细腻协调,营造出稳定、温馨的空间感受,满足现代年轻人的需求,没有太过抢眼的设计,亦没有五彩斑斓的色彩叠加,而是以典型的现代简约风格,令所有的色调和谐统一,注重于细节的表达流露出精致的生活格调。也许你是城市的新贵,也许你是有品位的成功人士,也许你可以随心所令人欲的掌控自己的生活。而我们总需要去证明一下我们是特别的存在,犹如我们的个性,是唯一的、特别的、独一无二的。
平面布置图
住宅空间实景类
BRONZE AWARD
参赛类别 / Category
住宅空间-实景类
作品名称 / Work
空宇
获奖者 / Winner
朱国振
《设计说明》
以颇具仪式感的格局和洄游动线,空间的氛围来自于生活的需求,晌午动静对立、光影斑驳。
北莱茵红橡的运用奠定了静谧的底色与秩序感,大理石为空间注入生机与光明。低饱和度的色彩关系作为主调,每个色相又巧妙地采用不同明度,保持着微妙的色彩平衡,丰富空间,增加了层次感。
于繁忙生活之中追寻安放身心与灵魂的独处空间,自然而不着痕迹地勾画出生活一幕。
在设计的过程中,设计师一直试图寻找暗藏其中的设计逻辑,希望解决业主的实际问题,避免追求为了设计而设计的浮夸形式,以简约的形态展现功能之外的美学蕴意。
最终呈现出“简”与“净”,通过自身的空间和审美力量证实着自己的存在和价值,这正是净化某些混乱表象的一剂良方。
窗外的自然景观,成了点缀的配角。对于身处在空间之人,静是最大限度的包容。引入自然光,光影的变化透过窗户,转呈于室内,转换时间,记录着一天的变化。
空间折射出居住者的生活方式,尊重真实的自我,才能顺应内心。主卧不同层次的灰有序排布,营造出开阔明亮的起居氛围,晨间柔和天光,夜晚月色明澈,这大概就是卸下疲惫之后的生活之美。
设计师在细节的把控上追求极简精致,让人与空间产生共鸣。
在私密空间的打造上,秉持“功能与美学”的双重需求,赋予其更多情感体验。最真实的自我状态、释压感与舒适感、精致生活中的讲究与细节,全部在颜色、材质、肌理间自然展现。
每一处空间细节,都应以人为本出发,关照体验者的体验,真正为生活而设计。
关于顶峰设计奖
顶峰设计奖由湖南省建筑室内设计学会发起,联合湖南省建筑设计院集团股份有限公司、湖南省设计艺术家协会主办,集建筑、室内设计于⼀体的全省顶级奖项。“顶峰设计奖”创新提出建筑设计与室内设计⼀体化,逐步模糊建筑设计与室内设计的边界,使建筑设计师和室内设计师两者的专业知识和设计思想互相渗透,达到室内外空间平衡和谐有序进⾏。
顶峰设计奖为旨在促进湖南设计⾏业领域的国际化发展,提⾼⾏业空间设计⽔准。中⼩型建筑室内⼀体化空间设计是能够体现设计经济价值、⽣态价值、艺术价值,从室外到室内、从环境到艺术完整的设计理念,更是未来建筑装饰⾏来发展的必然趋势。
⼤赛以湖南省建筑室内设计学会为平台,秉承“设计·驱动·湖南”为理念,恪守专业、严谨、公平、公正的原则,倡导本⼟原创设计,发掘并表彰优秀设计师及团体。⼒求将“顶峰设计奖”打造成湖南本⼟甚⾄全国的品牌赛事,进⼀步推动湖南设计的创造⼒、设计推动湖南影响⼒的价值转化。
顶峰设计奖组委会
湖南省建筑室内设计学会官网www.hiid.top
https://baijiahao.baidu.com/s?id=1730056677985905311&wfr=spider&for=pc
苏公网安备32021402002828