2021顶峰设计奖 | 住宅空间方案类获奖作品
*获奖者专辑将按奖项单元顺序发布
住宅空间方案类
GOLD AWARD
参赛类别 / Category
住宅空间-方案类
作品名称 / Work
保利D1
设计机构 / Organization
鸿扬家装
获奖者 / Winner
沈岳钢
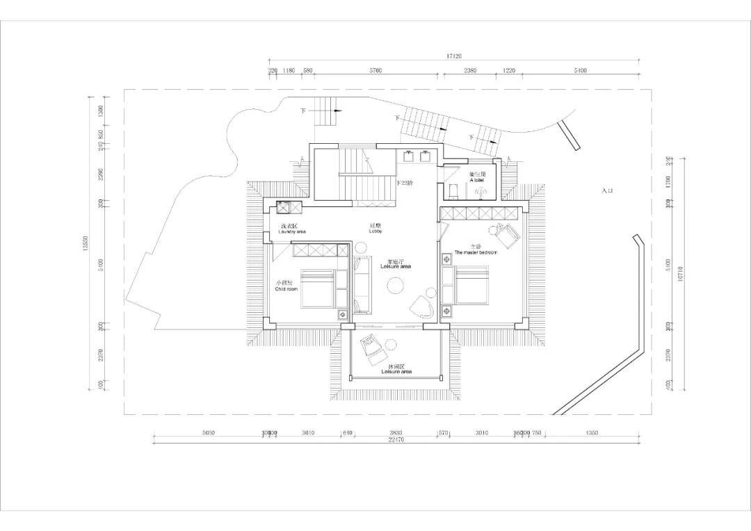
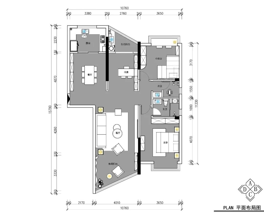
平面布置图
空间布置上,业主不希望门厅没有采光,同时厨房认为那种只有一个面进出的厨房及时不做门也没有开放式厨房的感觉同时也没有感觉放大了空间,所以在空间上以冰箱为主体将厨房墙体拆除,使得整个厨房没有真正的围合空间,达到扩大厨房的效果。
空间上在往里走,是业主的纹身工作室的部分,在和业主沟通和咨询了相关的专业知识后,进行合理化的布置,将授课区和办公区作为整体放在最需要采光的位置,将摄影会客和纹身台放在右边。
房间上保留两个卧室,主卧睡眠区整体抬高,将卫生间衣帽间和卧室合并为套间
设计手法上,整体色调希望通过深色去压暗空间,强化灯光的氛围和效果,同时用业主喜欢的红色为基调去做的设计和造型来强化业主希望的复古的感觉,
住宅空间方案类
GOLD AWARD
参赛类别 / Category
住宅空间-方案类
作品名称 / Work
与“皙”
设计机构 / Organization
湖南境屿空间设计有限公司
获奖者 / Winner
陈蹊
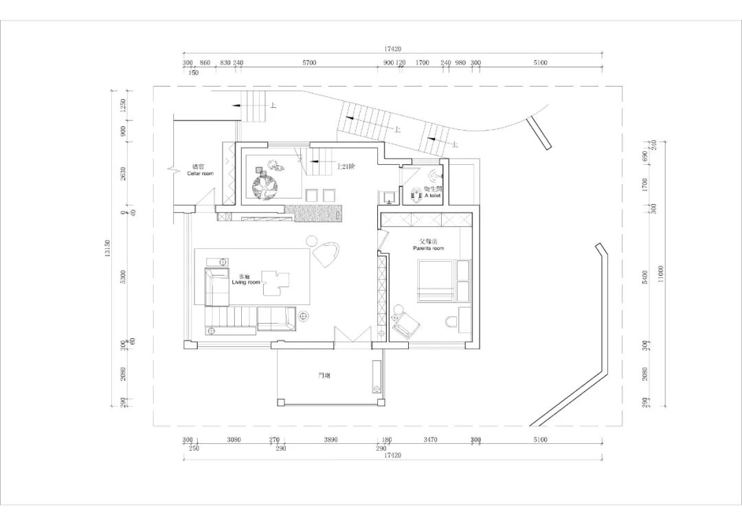
《设计说明》屋主是一对年轻新婚夫妻、性格爽朗干脆、钟爱干净简单的生活方式。他们更希望将这个房子打造成一个纯粹意义上的栖息地,而空间中秩序的建立和生活的限度对于他们是一种轻松自然、温暖的的氛围。
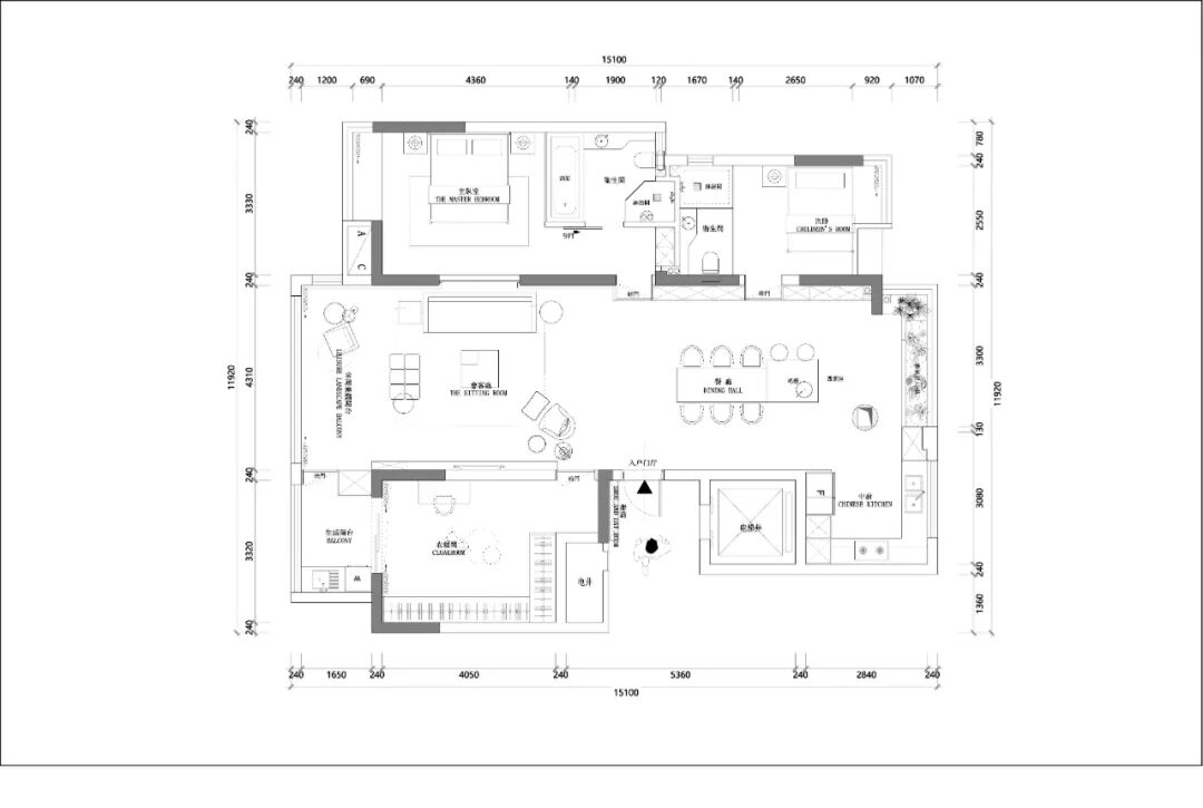
平面布置图
入户玄关的尺度调整,提升舒适度与仪式感的同时,带入次衣帽区的概念及大空间的收纳
厨房空间和生活阳台的空间整合,让厨房空间与光线的直接接触更为直接,同时让空间更为统一整体。
主卧的进门方向调整,提升卧室的整体空间体验感,同时对主卫的内部功能进行补充。
客厅:
阳台纳入客厅,最大化采光效果,同时采用质地比较柔软的垂直帘、可随场景调节光线进入室内的强弱。
客厅以木色为基调、通长的天际灯贯穿整个客厅,视觉上拉深空间深度。同时将主卧门做隐形处理与整个空间融为一体,模糊边界。
餐厅:
餐厅以温润的木色长桌和长凳联接整个空间,再以黑色餐椅作为点缀对比 。
水吧台隐于整面木色,赋予社交餐厅的概念之外、也让功能与空间以更和睦,放松的方式连结起来。
厨房:
整合后,在动线上更为舒适,再以白色加木色的清爽拉深空间,再以灰色台面去调和,拉升整个空间的质感。
主卧:
1、顶面以线型灯与圆形的吊灯去延续整个空间的线面
2、以隐形门的形式将卫生间消隐于通线的柜体面,让整个空间的材质连接更为整体
3、Oversize的悬浮床头柜与线型吊灯穿插的结构感,让空间变得更为灵动。
住宅空间方案类
GOLD AWARD
参赛类别 / Category
住宅空间-方案类
作品名称 / Work
归心巢屿
获奖者 / Winner
湖南省壹方建构设计有限公司
让生活融合在自然中才是住宅的本质。生活是一场境遇,看似平淡,却绘声绘色:设计是一种挑战,看似平凡,却是一种永恒。
本项目设计通过对艺术光影的捕捉与自然氛围的营造,空间因光而灵动,通过光线与其他材质的元素的灵活运用,在巧妙的运用建构的设计手法和空间简化的处理,从而接近本质,寻找一种隐匿的和谐存在于自然,谱写“凌空阔景,拥园如梦”的空灵意境。
纯粹为魂、自由为本、自然为质。
-1F平面布置图
1F平面布置图
住宅空间方案类
GOLD AWARD
参赛类别 / Category
住宅空间-方案类
作品名称 / Work
慢居
设计机构 / Organization
湖南内外设计
获奖者 / Winner
付琦
▼
梳理出合理的动线,尽量做足了收纳功能,
希望今后他们所有的物品都有自己的位置。
让生活可以变的更简单、轻松。
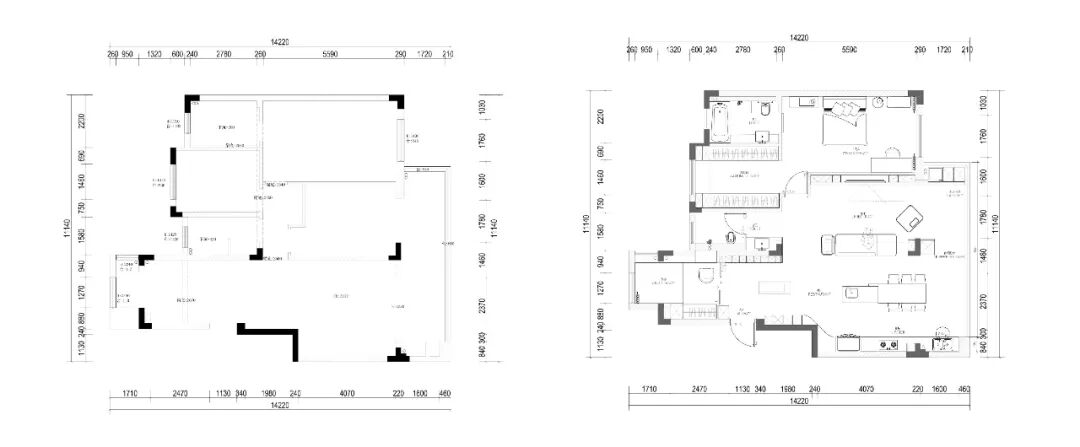
平面分析
原户型餐厅厨房空间偏小,不能满足家庭对厨房的日常需求。
入户左侧的角落空间浪费,较难利用。
布局优化
1将原来的餐厅的位置给了厨房做为功能的延展。
同时也避免了入户后直接对餐桌的不适感。
2利用入户左侧角落的空间和设置的通透玻璃砖墙,
形成一个用两个弧面组成的半圆围合空间,这个空间成为了新的餐厅位置。
餐厅与客厅两者之间既独立,又融合、贯穿。
3根据屋主的需求,
将原有卧室的空间重新进行分配。
住宅空间方案类
GOLD AWARD
参赛类别 / Category
住宅空间-方案类
作品名称 / Work
纯粹暖意 压力真空
设计机构 / Organization
猿厂营造
获奖者 / Winner
段冰倩
《设计说明》在平面布局上,五房改为两房。扩大了餐厅的面积,餐厅与西厨一体,设置蒸烤箱满足业主日常健身餐的需求;释放了一间卧室作为多功能房,兼备茶室与儿童活动区的需求;客厅与多功能房相连接使得整个空间更加通透,最大视野上观赏一线江景;在过道走廊会增加一些日常生活的储物,更加方便使用。
平面布置图
住宅空间方案类
GOLD AWARD
参赛类别 / Category
住宅空间-方案类
作品名称 / Work
Cx330
设计机构 / Organization
山乙建设
获奖者 / Winner
贺家乐
▼
平面布置图
住宅空间方案类
SILVER AWARD
参赛类别 / Category
住宅空间-方案类
作品名称 / Work
清悠
设计机构 / Organization
北京山乙装饰工程设计有限公司
获奖者 / Winner
陈凯思
《设计说明》人对空间的追求是不断变化的,过去我们追求奢华的外在,而今,空间更多的关注人的内心以及人与人,人与空间的互动与情感的交互。理想的生活,是有家人的陪伴,家的每处角落都藏着生活的精致和美好。独特的侘寂风格,以实用朴素来打造家的感觉主要以家居布置细节,打造充满温度的家,表达热爱生活的家庭对未来家的憧憬。本案常住人口有四人,业主需求三室两厅一厨两卫,主卫套间形式,主要以交流会客为主,需要做大 同时也可以和孩子单独相处互动的小空间亲子区,男主人需要独立的雪茄区域 女主需要超大衣帽间,整体的空间氛围是以男主为主,大部分硬装造型都是以圆弧为主,减少了硬朗方硬的造型,整体的颜色也是柔和、温馨为色调,本案在材质上面没有超过三种颜色,在保证空间的亮堂情况下要求无主灯设计,总结了需求我给空间定义为朴素自然侘寂风,甲方抱着期待提供对家的向往,乙方的倾听,分析,沟通、才有有空间的形与色。
平面布置图
住宅空间方案类
SILVER AWARD
参赛类别 / Category
住宅空间-方案类
作品名称 / Work
live better
设计机构 / Organization
猿厂营造
获奖者 / Winner
刘 欣
《设计说明》在本项目中。利用原结构转角落地窗的天然环境优势,以及本身富有的采光环境和室外环境,进行强烈对比(动静分区)。动区视野以及动线上实现无阻碍的完全开敞空间,利用点线面的概念,通过吊顶灯光以及墙面的体块关系实现“线”的流动性。利用面的思路设计观赏性的“中心物”,实现块状的关系,同时以“块”“中心物”室内及入户都可串通的动线及视野的设计呈现。
住宅空间方案类
SILVER AWARD
参赛类别 / Category
住宅空间-方案类
作品名称 / Work
素·澜
设计机构 / Organization
湖南空研室内设计有限公司
获奖者 / Winner
宋子敬
▼
大隐隐于市,小隐隐于野。
安静下来找到属于自己心中的净土。
本案于市中心的小区中,属于楼盘中与园林最密切的一个位置,虽然是平层,但是在一楼与小区园林紧密结合,别有一番大隐隐于市,小隐隐于野的感觉。此房是业主独自居住为主,父母和孩子只是偶尔来住。
平面布置图
住宅空间方案类
SILVER AWARD
参赛类别 / Category
住宅空间-方案类
作品名称 / Work
黄沙.灰土.红太阳
设计机构 / Organization
美迪装饰
获奖者 / Winner
杨兵、贺紫佳
▼
平面布置图
本案在长沙,提到长沙自然联想到的是湘江两岸,白砂如雪,垂柳如丝,如何贴合“黄沙”“灰土”“红太阳”又不失长沙城的细腻温暖呢?这也是设计师和业主共同探讨的关键所在。
最终经过磨合与业主达到一致,提炼了“黄沙”“灰土”“红太阳”的颜色,把原先粗犷的材质记忆用细腻温暖的室内材质表现出来,空间区分通过大面积红枫木板,从餐厅延伸至客厅以及其他空间,将其清晰切割成块状空间,使其成为界定不同材质的区分线,同时让客厅餐厅门厅过道互相连接,并呈现一种视觉上的同框效果。
整案在功能设计也秉承‘柜隐于墙,墙隐于柜’贴合业主对于整体收纳量的需求。客餐厅之间增加了吧台区域,贴合当下年轻人开放自由的生活方式,这也是家人.亲友互动与维系情感的精神场地。
主卧的色调偏柔和,红棕色的点缀令饱和度较低的卧室“回暖”,更温馨柔和,PU文化石与红枫木板相结合的床头背景墙增加了卧室的自然性。书房与主卧室通过玻璃隔断分区,使得空间有区分的同时又不至于拥挤。
住宅空间方案类
SILVER AWARD
参赛类别 / Category
住宅空间-方案类
作品名称 / Work
雅制之间
设计机构 / Organization
集川设计
获奖者 / Winner
蒋卓锟
▼
空间如信,坐在客厅午后阳光洒进咖啡杯里,视与味的重叠体验。落地窗让视觉感得以延伸,一植一物都透露着自然悠闲的气息,让人沉浸其中汲取宁静,感受时光洒下的痕迹。
灯光丰富的层次,让你清晰感受到边界感、肌理感、仪式感。
1F平面布置图
餐厅:与客厅相通的空间,把两个空间融为一体,解放了空间的“天性”,充分发挥了食为快乐人生之意,慢食三餐,体验人生五味。
2F平面布置图
主卧房没有过多去强调风格或样式,亦没有追求潮流与个性。而是以简单的心态,带着业主回归生活的初心去诠释空间,提供居者一份明亮、舒适的空间。
3F平面布置图
星空顶的浪漫不止在劳斯莱斯,浩瀚星空,暗与亮的结合体,藏着一个未知的宇宙。这是地下共享空间,设计以引虚借景的手法将有限的空间得到视觉延展,拥有大宅气度。休闲与娱乐的碰撞,有如穿越时空的对话。
4F平面布置图
住宅空间方案类
SILVER AWARD
参赛类别 / Category
住宅空间-方案类
作品名称 / Work
春山暖日
设计机构 / Organization
元·空间设计
获奖者 / Winner
彭芳、向际臻
▼
平面布置图
整个空间的设计,舍弃了复杂的面材,以温润的木质材料作为基底,搭配大地色系的沉稳,展现空间最初的本质;纯粹的色彩,质朴的材料,利用暖色系的体块及材质的质感,化繁为简,让简单成为最大的能量,搭配上由昼及夜的光影变化,创造出室内空间所需的温润情感,回归生活最初的向往。
住宅空间方案类
SILVER AWARD
参赛类别 / Category
住宅空间-方案类
作品名称 / Work
观山·印
设计机构 / Organization
木壹设计
获奖者 / Winner
王宇冬
▼
平面布置图
住宅空间方案类
SILVER AWARD
参赛类别 / Category
住宅空间-方案类
作品名称 / Work
黑白游弋
设计机构 / Organization
亚町设计
获奖者 / Winner
陈五木
▼
平面布置图
这个时代节奏太快,人们步履匆匆,居室空间已然成为心灵与时空对话的场所,当你真正找到自己的方式以后,一栋房子,不仅仅是一个家,更可以是一个生活与工作恰当混合的容器。一种静默与美的意境,通过色彩、装饰元素及材质的碰撞。
住宅空间方案类
BRONZE AWARD
参赛类别 / Category
住宅空间-方案类
作品名称 / Work
淑·宅
设计机构 / Organization
元·空间设计
获奖者 / Winner
彭天仡浩
▼
生活空间以三大主轴贯穿,分别为休闲客厅、环线岛台、礼佛空间作为机能上的发展,辅以隐形过道横向动线串联整体,力求动线流畅及视觉开阔。量体彼此实虚交叠,在光影的变换下,客厅中岛演变为一件大型雕塑,让一层空间围绕着中岛,围绕着家人彼此的欢愉交流与生活动线;微建筑的概念创造轴线,层层渐进,打破视觉及空间边界。
卧房大面积柜体采用肤感肌理设计,简约几何型态的软装搭配,使空间多一层表情和姿态。连接半开放衣帽间及睡眠空间,柜体设计以半高造型为主结合金属件,使空间在光线穿透之下,产生光与影的碰撞。
住宅空间方案类
BRONZE AWARD
参赛类别 / Category
住宅空间-方案类
作品名称 / Work
此番
设计机构 / Organization
山乙山全装饰工程设计
获奖者 / Winner
李李宇、郭峰
▼
细节保持简单纯净,恰到好处的精致。色彩,孩子对世界最直观的认识,儿童房的色彩搭配能让孩子在彩色的空间探寻未知,给予孩子成长时间更多乐趣。
1F平面布置图
2F平面布置图
3F平面布置图
住宅空间方案类
BRONZE AWARD
参赛类别 / Category
住宅空间-方案类
作品名称 / Work
度
设计机构 / Organization
叁木空间
获奖者 / Winner
胡启坤
▼
从玄关到客厅,没有定式,以可开可合的场域,让生活拥有更多可能,简约的手法摒弃过多的造型,以灯光、色彩点缀,给人更多的遐想空间。
书房开放的设计方式,让屋主更随心随性的切换生活状态,顶部镜面提升视觉空间的同色,让书房多了一些无限延申的神秘感。
自然的中性色调使空间显得格外沉静,其软装以黑灰无色彩搭配纯静简洁的空间,诠释出空间力求自然极简的调性。以灰度营造高级感,幽暗的中性调,收敛外界的浮躁和烦乱的思绪,放大自我的存在,不张扬不做作,给予业主包裹感和安定的情绪,让人的精神得以沉浸,获得长效的居家体验。
住宅空间方案类
BRONZE AWARD
参赛类别 / Category
住宅空间-方案类
作品名称 / Work
极简光影-雅士林
设计机构 / Organization
金空间·壹马高端设计会所
获奖者 / Winner
刘波
▼
地面是柔光的仿石地砖,墙面选用高级灰搭配仿石地面,不同的材质在统一的色调下相互呼应,打造出简约而高级的小小空间。
平面布置图
客厅中,整片空间被黑色包围,电视墙选用灰色模块堆砌而成,奠定整体空间厚重粗旷的基调。中性调的布艺沙发与石材茶几显得沉着、稳重。黄铜色的艺术装置成了这片空间中唯一的色彩,引人注目,点缀了整片黑色。社交厨房在整个公寓中占了举足轻重的地位,给主人的生活增添了乐趣...
住宅空间方案类
BRONZE AWARD
参赛类别 / Category
住宅空间-方案类
作品名称 / Work
Project Black
获奖者 / Winner
浅尺住建
▼
平面方案中我们在走廊的往返之间设计了斜面的墙体,斜墙在空间之中往往都是比较浪费空间的,我们在平面方案布置中就考虑了该问题。在斜墙与墙体的阴角顺应的设计了储物间,并将次卫的浴室柜外置。主卧的墙面考虑了弧形墙面,与衣帽间的相互承托出流动感。
《Project Black》颜色、材质都是选用的黑色调。暗系,不是冰冷,不是沉重,是让高级更高级百搭设计。打破常规,不走寻常路,放弃炫彩,不留遗憾,沉浸于简约宁静之中,获取能量,用艺术颠覆认知与想象,果敢有范。
平面布置图
住宅空间方案类
BRONZE AWARD
参赛类别 / Category
住宅空间-方案类
作品名称 / Work
精致生活
设计机构 / Organization
山乙山合
获奖者 / Winner
储星宇
▼
硬装用法式浪漫的语言去诉说,线条角花结构都是语言,在叫嚣着它们的故事。色彩上大面积的白色,让复杂的语言不在繁琐而是更加的精致简约,透着一股子优雅的气息。
灯光的点缀让空间有了自己的灵魂,不落俗,不矫情,多了些生活中的温暖劲。
软装上色彩的碰撞,让平静的外衣下展示出了动感的跳跃,一步一景都那么栩栩如生起来。
平面布置图
住宅空间方案类
BRONZE AWARD
参赛类别 / Category
住宅空间-方案类
作品名称 / Work
映象
设计机构 / Organization
北京山乙装饰工程设计有限公司
获奖者 / Winner
苏星宇
▼
1F平面布置图
针对以上几点,将室外的采光纳入室内的同时形成室内外交互空间,丰富空间层次的同时巧妙的解决空间采光及通风问题。电视背景墙结合钢板展示柜和石皮背景墙,木质吧台结合,立面上由一个空间体块处理,解构。顶面不锈钢结构延申贯穿。楼梯下通过窗户结构的改造,光线映入室内,设计枯山水造景。二楼家庭厅设计保留原有房屋坡屋顶结构,通过吊顶灯光增加层次。温润的木饰面结合达到空间和自然和谐共处。
保留空间本真,追求心中的理想生活居所。
住宅空间方案类
BRONZE AWARD
参赛类别 / Category
住宅空间-方案类
作品名称 / Work
极简光影-九里晴川
设计机构 / Organization
金空间·壹马高端设计会所
获奖者 / Winner
刘波
▼
现代的黑色家居有着强烈的个人风格表现力,室内设计中把黑色用得好,不仅有个性、酷帅,更能凸显出高级感。
平面布置图
一个永远不会出错的颜色
但不能否认它与生俱来的霸气与魅惑
它神秘却可以接受一切的搭配
巧妙的材质搭配和家具选型
不经意间就能产生意想不到的效果黑色,是一种极其神秘而矛盾的色彩语言
它的性感诱惑,使人着迷,亦使人堕落
或执着或反感,或许是一个极致的反差
高级黑有着石墨般的厚重感
不动声色中透露出低调的优雅
摒弃传统家装的温暖色彩
营造高冷格调和神秘气质
高级黑是时尚界永垂不朽的神话
极致、经典、神秘、霸气
成熟稳重而又不失惊艳韵味
近似没有温度的外表下隐藏着炽热的内心
只一眼,便能让你无可救药地沦陷
住宅空间方案类
BRONZE AWARD
参赛类别 / Category
住宅空间-方案类
作品名称 / Work
清秋
设计机构 / Organization
湖南上层筑尺建筑设计
获奖者 / Winner
廖蓉
▼
本案设计采用现代美式的装修风格,不加过多的修饰与约束,散发出迷人的休闲式浪漫。
客餐厅连通的空间设计将空间延伸感体现地淋漓尽致,两个空间连通又独立,动线灵活,给日常生活带来更多的自由及互动,同时也足以满足偶尔朋友聚会的需求。整体采用简单的线条元素为初始空间带来一抹耀眼的跳动。客厅色调在原有大面积米白色的基础上,搭配皮质沙发,以绿色为点缀色,点亮整个空间,暖色地毯与布艺抱枕营造温馨感,玻璃茶几和绿色岩板造型来提升空间的细节品质。
平面布置图
在整个家中,最为开放的地方是厨餐区。吧台将餐厅与厨房连接起来,日常的咖啡、糕点就在此处完成。中厨做“大餐”时,吧台、客厅和餐厅则融为一体,为家庭使用增加了更多可能性。
主卧色调暖心质感,素雅白灰色为主调,点缀一抹粉色,简化传统美式的空间布置,使之显得文艺又优雅。
从家具材质到布艺色彩、肌理,所有的细节皆是从人的根本需求出发,历经了繁复的筛选过程。我们希望让房子里的东西都有故事,有它们存在的理由,让空间与生活真正地关联在一起。
住宅空间方案类
BRONZE AWARD
参赛类别 / Category
住宅空间-方案类
作品名称 / Work
灰白记忆
设计机构 / Organization
筑艺设计
获奖者 / Winner
龚广辉、欧植园
《设计说明》本案业主是位摄影师,他说希望自己的家可以像老照片一样定格。所以我们的风格定位就是这种黑白灰感觉的了。设计除了在色调、材质、装饰方面去呈现出黑白灰的氛围感以外,还从居住者的生活习惯出发,对动线安排、空间互动方面进行了规划,我们希望能够在未来的生活中会有更多的遐想。
平面布置图
关于设计理念,一直都是本着解决业主的问题开始着手,在解决问题的同时营造出业主想要的一个空间氛围。房子不单是个盒子,也是承重我们情绪及生活的一个空间。在喧嚣的城市生活中,我们都需要自己的一个轻松舒适的居室环境,无关他人,无关风格,把繁琐的东西拿掉,让设计回归本真,舒适就好。
关于顶峰设计奖
顶峰设计奖由湖南省建筑室内设计学会发起,联合湖南省建筑设计院集团股份有限公司、湖南省设计艺术家协会主办,集建筑、室内设计于⼀体的全省顶级奖项。“顶峰设计奖”创新提出建筑设计与室内设计⼀体化,逐步模糊建筑设计与室内设计的边界,使建筑设计师和室内设计师两者的专业知识和设计思想互相渗透,达到室内外空间平衡和谐有序进⾏。
顶峰设计奖为旨在促进湖南设计⾏业领域的国际化发展,提⾼⾏业空间设计⽔准。中⼩型建筑室内⼀体化空间设计是能够体现设计经济价值、⽣态价值、艺术价值,从室外到室内、从环境到艺术完整的设计理念,更是未来建筑装饰⾏来发展的必然趋势。
⼤赛以湖南省建筑室内设计学会为平台,秉承“设计·驱动·湖南”为理念,恪守专业、严谨、公平、公正的原则,倡导本⼟原创设计,发掘并表彰优秀设计师及团体。⼒求将“顶峰设计奖”打造成湖南本⼟甚⾄全国的品牌赛事,进⼀步推动湖南设计的创造⼒、设计推动湖南影响⼒的价值转化。
https://baijiahao.baidu.com/s?id=1722285004918542658&wfr=spider&for=pc
苏公网安备32021402002828